tiny house villages

south lake union

With the Lake Union Tiny House Village, creating a vision and color palette were the main focus. The idea was “urban oasis”, acknowledging the ever changing relationship between the concrete neutrals of the city and the natural elements of the beautiful PNW. This concept was expressed with an intentional color palette made up of blues, grays, greens, and browns, with pops of red, to mirror the fluctuations of the seasons.

lake union village.jpg
20180908_145217.jpg

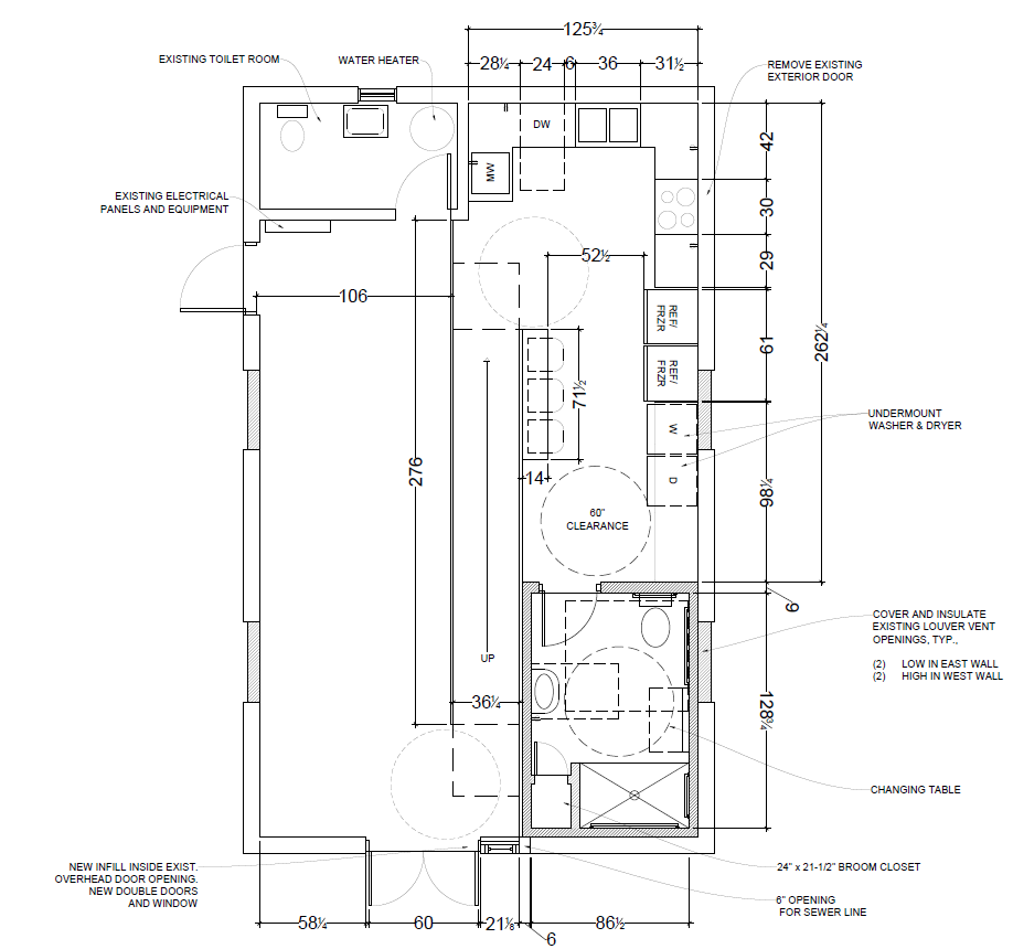
Crown Hill

lihi crown hill.PNG

This low barrier village had the unique situation where their communal kitchen would live in an existing warehouse space. It was necessary to space plan to ensure ADA accessibility and meet all the requirements of a Kitchen, eating area, laundry services, and access to the restroom.