Conceptual Work II | Residential Design: Homage to Bulfinch in Queen Anne Home

Beautiful Queen Anne home ready to be renovated. The Westerly family are looking for their home to reflect their love for Neoclassical style, inspired by the architect (designer of our Capitol's building) Charles Bulfinch. I sought to find a seamless relationship between the symmetry of the traditional with the functions of modern living and create a design that this family could enjoy for years to come.

This project was a practice of balance, of finding a way to accommodate the needs of all users and implement their design hopes while respecting the character of the home.

A draft from back in the drafting room day

A draft from back in the drafting room day

It was also a practice of patience and fortitude. The residential studio class was solely a hand drafting course so working on 3 levels and roughly 12 plans to be inked and some shaded was a test of hand strength and resilience. I won't show all 12 plans, I will highlight just 3; the finish plan, reflected ceiling (lighting) plan, and furniture plan.

Finish Plan: Main Level

As a class we were able to visit the actual home the project was based on. We walked through the rooms to get an idea of what our existing parameters were to help guide the changes asked from our client. One of the coolest features was the hardwood floor, which had an inlay geometric pattern that I knew was essential to keep. To protect the privacy of the owners I don't have photos to show you, unfortunately, but the plans will at least give you an idea!

 

Existing Main Floor Plan

Existing Main Floor Plan

I wanted to create a simple design with a few splashes of interest and color. I find that a great place to let creativity flow is the powder bath. Typically a small space with just a sink and toilet, the finishes and lighting can be a great tool to break just a little outside the box and still keep with the overall aesthetic. So in the case of the Westerly's I thought a fun design would be penny tile in a deep royal blue complemented against a graphic yellow print wallpaper. The result is subtle texture with an interesting pop of color to revitalize the space.

Revised Finish Plan

Feel free to click on all of the thumbnail images to find out more details on the manufacturers site!

Reflected Ceiling Plan: Upper Level

Determining the lighting was a fun stage of the project, particularly as I worked with these plans after graduating (to clean up the needed blemishes). My experience at Harold's lighting helped me recognize areas where I applied certain fixtures that didn't provide adequate lighting due to factors like low wattage and their location of installation.

Existing Upper Floor Plan

Existing Upper Floor Plan

I decided to use pendants as the central focal point and representation of the Classic design. Schoolhouse glass with bronze metal detail were chosen often and then supported by recessed cans to fill the needed ambient light. One small but really effective detail that I encourage, theoretically and in life especially, is installing dimmer switches. Dimmers allow more flexibility to control how much light is desired, to adjust to fit the time of day or activity, and save energy costs.

Revised Lighting Plan

Revised Lighting Plan

There were also some areas where I wanted a stronger focal point. Namely two, the alcove in the hallway and the master bedroom. I chose an island light from Hudson Valley (L-5) to draw your eye as you walk up the stairs and then a gilded mercury glass chandelier (L-2) in the bedroom. Fixtures like these, with smooth curves and delicate ornate details, support that opulent aesthetic of Neoclassic style in which elegance is still livable and unassuming.

 

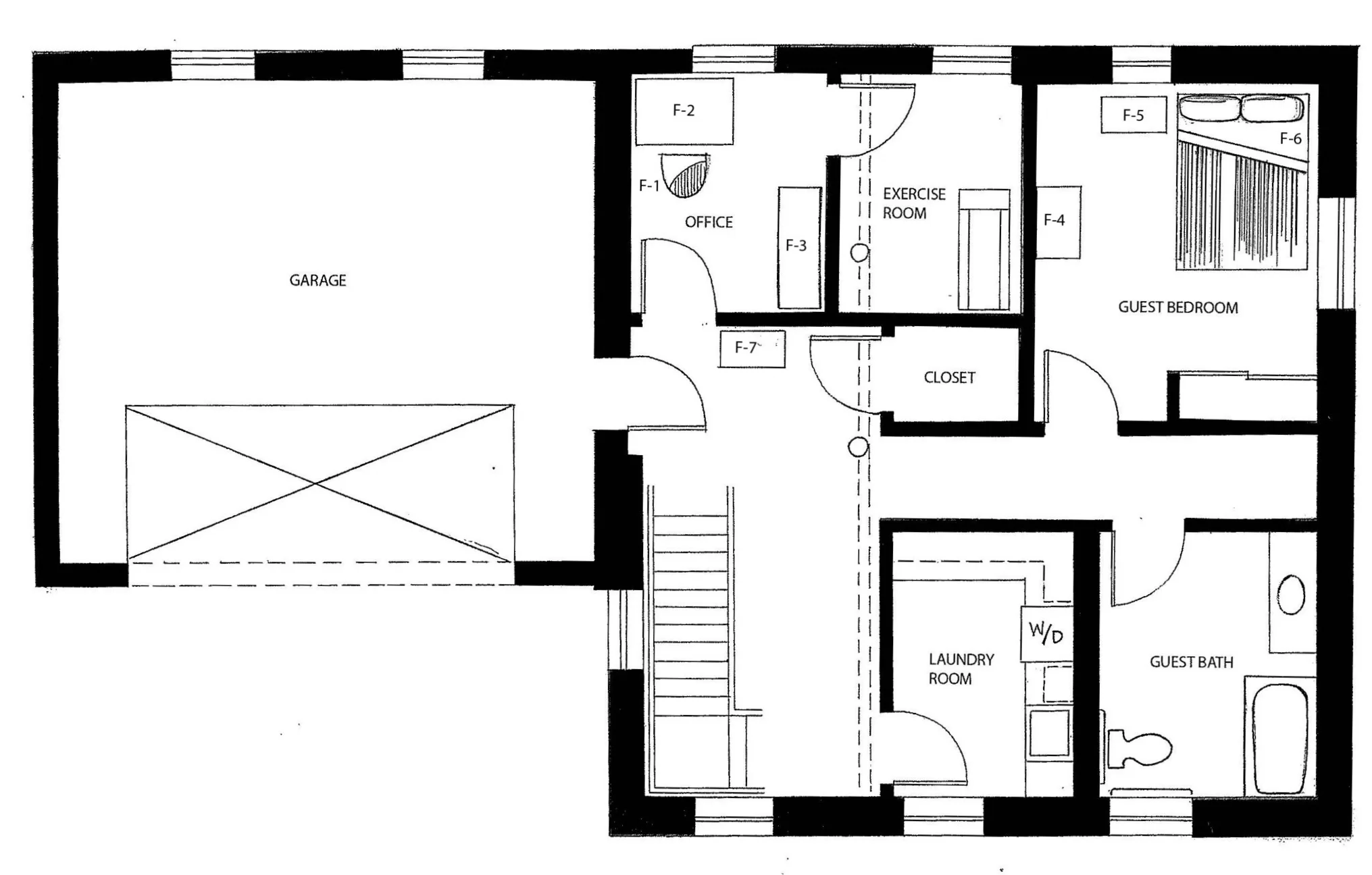
Furniture Plan: Basement Level

The Basement level was one that required a lot of consideration as far as construction and then furniture choices. In the near future the Westerly family will be welcoming their grandmother to live in a newly constructed bedroom. It was necessary to make it accessible so she could utilize the space most effectively and safely. Based off of the size of the room, I chose a full size bed to allow enough clearance on either side for her to move comfortably. Our introduction to the family noted that she often uses a wheelchair, therefore clearance space is essential. When there are limitations in mobility it can be challenging to have to work around obstacles in a home which is intended to be restful and restoring. 

Existing Basement Floor Plan

Existing Basement Floor Plan

Apart from the bedroom, the only other room with furniture is the office. I looked to furnish the office with pieces that channeled the Neoclassic style; spindle legs, rich dark woods, warm leather, to make the space feel cozy and antiquated (in a good way) as well as foster comfort and functionality. 

Revised Basement Floor Plan

Residential design is a very enriching segment of design work. To design conceptually can be really enjoyable because it encourages continual practice of drafting, implementing good design, knowledge of product sources, and communication skills. All of which are tools that can bring to fruition a client's goals and wishes. When done successfully it can have a lasting impact and that is a very worthwhile cause.

If you'd like to learn more about the famous architect of the United States' capitol. Feel free to click on his stoic image.

If you'd like to learn more about the famous architect of the United States' capitol. Feel free to click on his stoic image.


Warm wishes,

Kels